Чистота и порядок в доме: основные принципы
- Чистота и порядок в доме: основные принципы
- Связанные вопросы и ответы
- Какие основные правила нужно соблюдать для поддержания порядка в доме
- Как организовать пространство в доме для максимальной эффективности
- Какие удобные решения можно использовать для хранения вещей в доме
- Как создать систему порядка в доме, чтобы каждый член семьи мог следовать ей
- Как поддерживать чистоту в доме, не тратив много времени и сил
- Какие особенности организации пространства нужно учитывать при оформлении детской комнаты
- Как создать уютную обстановку в доме, используя декоративные элементы
- Какие подходы можно использовать для создания домашнего сада или огорода
Чистота и порядок в доме: основные принципы
Приложив немало усилий для наведения порядка и формирования у детей привычки и потребности в чистоте, многие пускают эту ситуацию на самотек. Это приводит к тому, что квартира постепенно вновь обрастает ненужным хламом, дети перестают застилать постель и убирать игрушки, а вы опять чувствуете себя никчемной хозяйкой, женой и мамой. Чтобы этого не произошло, придерживайтесь выбранного курса, не бросайте начатое! Это то же самое, что сидеть на диете, похудеть на 10 кг, а потом опять начать есть по ночам булки и тортики.

Если вы навели порядок и хотите, чтобы она такой и оставалась, используйте основные принципы и методы поддержания чистоты.
Основной принцип порядка в доме – это регулярность и постоянство. Вместо того чтобы один раз в месяц тратить весь день на наведение чистоты, старайтесь поддерживать её ежедневно.
Еще один простой и очень важный принцип, как поддерживать порядок в квартире — правильное и рациональное потребление.
Вы задумывались о том, как и при каких обстоятельствах вы покупаете, например, игрушки своему ребенку? Чаще всего это спонтанные покупки и подарки к праздникам. Однако можно пересмотреть свои взгляды на этот вопрос и подойти к нему более осознанно. Все вы прекрасно знаете, что в определенном возрасте ребенку нужны определенные игрушки: если малышу до года нужны погремушки, тактильные мячики и книжки с картонными страницами, то пятилетке потребуется велосипед, светофор и несколько настольных «бродилок». Возьмите на вооружение подобные списки и запланируйте большие и дорогостоящие покупке заранее. Для поддержания порядка в доме можно составить своеобразный план покупок. Конечно, каждую машинку или куклу мы туда вписывать не будем, но такие серьезные покупки, как самокат, набор энциклопедий или говорящую куклу лучше все-таки планировать заранее.
При покупке игрушек не забывайте задавать себе вопросы:
- Где мы будем хранить эту игрушку?
- Есть ли у нас подобная игрушка?
- Чем она будет полезна ребенку? Что мы будем развивать с ее помощью?
Конечно, мы не сможем отказать ребенку в покупке машинок и солдатиков, кукольной посудки и одежды для куклы Маши. Но есть один очень разумный совет, как поддерживать порядок в доме: попробуйте ввести в вашу жизнь правило «Одна новая — минус две из дома». То есть после того как новая игрушка заняла свое место, несколько старых игрушек должны отправиться к другим хозяевам. Кстати, этот принцип можно легко применить и к другим вашим покупкам.

Следующий принцип, как поддерживать порядок в комнате в частности и в доме в целом, поможет вам закрепить полученные результаты. Это своевременная корректировка ваших планов, списков и занятий с ребенком. Если вы видите, что ребенок уже не реагирует на напоминалки и стикеры, придется придумать что-то новенькое. Если он уже так овладел привычкой, что не нуждается в вашем вмешательстве, пора предложить ему что-то более актуальное, интересное и не менее полезное. Если вы твердо решили научиться поддерживать порядок в квартире, кроме как постоянно держать руку на пульсе, анализировать ситуацию и искать новые и нестандартные выходы и решения, пути нет.
Связанные вопросы и ответы:
1. Как часто нужно убираться в доме
Ответ: Частота убирания в доме зависит от количества жителей и их образа жизни. В идеале, ежедневно следует выполнять быструю уборку, такую как уборка пола, вытирание столов и прибивку постельных принадлежностей. Еженедельно следует проводить более подробную уборку, включая мытье полов, вытирание мебели и прочее. Ежемесячно можно выполнять глубокую уборку, включая чистку штор, окон и других труднодоступных мест.
2. Как организовать работу по дому между членами семьи
Ответ: Организация работы по дому между членами семьи может быть проще, если каждый член семьи будет отвечать за определенные задачи. Например, один человек может быть ответственным за уборку кухни, другой - за уборку ванной комнаты, третий - за уборку гостиной и т.д. Также можно использовать списки дел, чтобы каждый член семьи знал, что нужно делать и когда.
3. Как хранить вещи, чтобы они не загромождали дом
Ответ: Чтобы вещи не загромождали дом, нужно их правильно хранить. Используйте стеллажи, шкафы и другие мебельные изделия для хранения вещей. Также можно использовать подвесные полки, крючки и другие решения для хранения мелких вещей. Еще один способ - это регулярно проводить уборку и отбрасывать вещи, которые больше не нужны.
4. Как избежать засорения дома мусором
Ответ: Чтобы избежать засорения дома мусором, нужно регулярно выбрасывать мусор. Установите мусорные контейнеры в разных частях дома и попросите всех членов семьи следовать правилам раздельного сбора мусора. Также можно использовать контейнеры для переработки и рециклирования, чтобы уменьшить количество мусора, который попадает в мусорные контейнеры.
5. Как убраться быстро и эффективно
Ответ: Чтобы убираться быстро и эффективно, нужно иметь определенный план действий. Начните с наиболее заметных и загрязненных мест, таких как кухня и ванная комната. Используйте удобные инструменты для уборки, такие как ватные палочки, мыльные пузыри и т.д. Также можно использовать музыку или аудиокниги, чтобы сделать процесс уборки более приятным.
6. Как убраться после вечеринки или праздника
Ответ: Чтобы убраться после вечеринки или праздника, нужно быть быстрым и эффективным. Начните с уборки пола, убирая все бутылки, стаканы и другие предметы. Затем выполните быструю уборку кухни, убирая остатки еды и уборку посуды. После этого выполните более подробную уборку, включая мытье полов, вытирание мебели и т.д.
7. Как убраться после ремонта
Ответ: Чтобы убраться после ремонта, нужно быть осторожным и внимательным. Начните с уборки строительного мусора, такого как мешки с песком, бетоном и другими материалами. Затем выполните быструю уборку пола, убирая пыль и другие загрязнения. После этого выполните более подробную уборку, включая мытье полов, вытирание мебели и т.д. Если ремонт был очень грязным, можно воспользоваться услугами профессиональной уборки.
Какие основные правила нужно соблюдать для поддержания порядка в доме
Главный секрет чистоты и порядка — поддерживать их не должно быть слишком сложно. Эти пять правил можно применить в организации любого помещения и любой уборки, ежедневной или грандиозной генеральной. Они просты, а эффект налицо!
Дома будет ещё уютнее и комфортнее, если вы будете одеты в вещи, которые вам подходят и нравятся. Обратите внимание на ,и в нашем электронном каталоге.
Наверняка вы обращали внимание на то, что дома, в которых меньше вещей, выглядят более чистыми и аккуратными? Если вы стремитесь к большему порядку, это совсем не значит, что вам срочно нужно выбросить половину гардероба или лишить детей многочисленных игрушек. Будет достаточно, во‑первых, более пристально выбирать те новые вещи, которые вы приносите в дом, а во-вторых — регулярно инспектировать имеющиеся и избавляться от того, что уже не нужно.
2. Организуйте логичную и понятную систему хранения
Поддерживать порядок и класть вещи на свои места гораздо проще, если система хранения устроена удобно и логично. Храните предметы там, где они вам чаще всего нужны — так будет проще убирать их на место. Подумайте, как сделать так, чтобы распределение вещей по местам было максимально удобным и простым, занимало минимум времени. Плюс — группируйте одинаковые предметы и вещи по их функциям. Например, храните вместе всю бытовую химию, отдельное место хранения выделите для детских игрушек, и так далее. Так вам и домашним будет проще запомнить организацию хранения и следовать ей.
3. Оставляйте места хранения для мелочей
В каждой квартире найдётся некоторое количество мелких предметов, которые вроде нужны, но как и где их хранить, не очень понятно. Канцелярские резинки, запасные батарейки и прочие мелочи можно сложить в какую-то отдельную коробку или ящик. В идеале стоит рассортировать их там, чтобы вещи лежали по категориям, а не в беспорядке.
4. Предусмотрите места для временного хранения
В первую очередь это относится к одежде, которую вы уже носили, но пока не хотите её стирать. В корзине для белья ей пока не место, и в шкаф с чистыми вещами класть её уже не хочется. Предусмотрите, например, отдельную полку или ящик в шкафу или комоде для подобных вещей.
5. Забудьте о перфекционизме
При стремлении навести порядок в доме не стоит стремиться к идеалу, жертвуя ради него собственным комфортом и отношениями с домочадцами. Если в целом в вашей квартире хорошо налажена система хранения, ничего страшного не будет, если иногда правила чистоты будут нарушаться. Когда убираться просто и легко, для ликвидации временного беспорядка не потребуется много времени и сил!
Как организовать пространство в доме для максимальной эффективности
Описание
Поддержание организованного дома не только повышает его эстетическую привлекательность, но также способствует созданию свободной от стресса и эффективной жизненной среды. С помощью нескольких простых стратегий вы можете превратить свое пространство в хорошо организованное жилье.
1. Наведите порядок и расставьте приоритеты
Начните с наведения порядка в доме. Оцените каждый предмет и определите его ценность и полезность. Примите минималистский образ мышления и расстаньтесь с вещами, которые вам больше не нужны. Расставьте приоритеты между предметами первой необходимости и держите их под рукой.
2. Интеллектуальные решения для хранения данных
Инвестируйте в практичные решения для хранения, чтобы оптимизировать использование пространства. Используйте вертикальное хранилище с полками или подвесными органайзерами. Максимизируйте пространство в ящиках, используя перегородки и контейнеры. Маркировка помогает быстро находить предметы и поддерживать порядок.
3. Индивидуальный подход
Организуйте одну комнату за раз, чтобы не перегружать ее. Начните с мест с интенсивным движением, таких как прихожая или кухня, обеспечив легкий доступ к часто используемым предметам. Постепенно перемещайтесь по каждой комнате, применяя последовательные принципы организации.
4. Функциональная мебель
Выбирайте многофункциональные предметы мебели, которые предлагают варианты хранения. Пуфы со скрытыми отделениями, журнальные столики с полками и кровати со встроенными ящиками — отличный выбор для экономии места.
5. Ежедневные привычки
Развивайте привычки, которые способствуют организованности. Ежедневно посвящайте несколько минут наведению порядка, раскладывая вещи по местам. Поощряйте членов семьи следовать этому примеру, сохраняя окружающую среду свободной от беспорядка.
6. Цифровая организация
Расширьте организацию в цифровой сфере. Создавайте папки и классифицируйте файлы на своем компьютере. Регулярно создавайте резервные копии важных данных и удаляйте ненужные файлы, чтобы освободить место для хранения.
Какие удобные решения можно использовать для хранения вещей в доме
5 мин. на прочтение
Дано: обычная московская семья из трёх человек (родители и ребёнок), стандартная двушка (спальня, детская, кухня и т. д.) и только что проведённая генеральная уборка. Засекаем время: сколько продержится идеальный порядок после уборки? Правильный ответ — 1,5 минуты.
Именно столько пройдет времени, пока вы наливаете капучино в любимую чашку (конечно, чтобы потом забыть её в раковине), а ваш ребёнок стаскивает с дивана все подушки, чтобы устроить себе вигвам индейца. Вывод: идеального порядка, длящегося более двух минут, не существует!
Можно ли спасти утопающего в вас перфекциониста? Да! Мы предлагаем разобрать по полочкам каждый угол квартиры, чтобы понять, как можно сделать хранение вещей удобным, практичным, а главное — уютным и стильным. Порядок — вещь преходящая, а вот удобство должно быть постоянным.
Почему всё так сложно (на самом деле нет)
Самая частая проблема при организации хранения вещей в доме — это количество: разной одежды, мелочей, игрушек, бытовой техники и девайсов.
Секрет правильной организации хранения домашних вещей состоит в том, чтобы разделить их на группы и найти им правильное место. Например, все хозяйственные принадлежности, бытовую химию лучше сразу сложить в ванную, ведь на кухне вы пользуйтесь ими реже. А книги и гаджеты легче хранить в одном месте — в зоне отдыха и развлечений, например, в гостиной.
Даже в пределах одного кухонного шкафа можно организовать маленький порядок: полка для специй, полка для круп и т. д. Посуда займет меньше места, если рассортировать ее по размеру и положить одно в другое, например, кастрюли. А сковородки можно просто повесить над плитой. Эти и другие советы в нашем лонгриде про хранение вещей дома.
Системы хранения для гардеробных, комодов и шкафов
И пусть ваша гардеробная немного меньше, чем у Кэрри Брэдшоу, но платьев наверняка столько же! Что делать? Звать на помощь Мари Кондо: вертикальное хранение — надёжный выход из любой «платяной» ситуации. Сложите все базовые комплекты в ящики комода вертикально, а на вешалках оставьте только праздничные наряды, рубашки и то, что легко мнётся. Многоуровневые вешалки и дополнительные крючки на дверцу — незаметный ход конём, который увеличит вместимость шкафа как минимум в 1,5 раза.

Как создать систему порядка в доме, чтобы каждый член семьи мог следовать ей
Создание идеального порядка начинается с понимания нескольких базовых принципов, которыми руководствуются профессиональные дизайнеры. Эти подходы помогают превратить любое помещение в функциональное и удобное пространство.
Метод «Одно касание»
Один из самых эффективных способов борьбы с беспорядком — это метод «одно касание». Его суть заключается в том, чтобы каждая вещь после использования немедленно возвращалась на свое место. Это простое правило помогает предотвратить скопление вещей на поверхностях и значительно упрощает поддержание чистоты.
После использования кухонного ножа не оставляйте его на столе. Лучше сразу помойте и уберите в ящик или повесьте на магнитный держатель. То же самое касается шариковых ручек, ножниц и других инструментов. Таким образом, поверхность стола, будь то кухонного или комнатного, не захламляется лишним и остаётся аккуратной.
Принцип «Золотого треугольника» в кухне
Принцип «золотого треугольника» — это классический подход к организации рабочего пространства на кухне. Он основан на идее создания эффективного маршрута между тремя основными зонами: плитой, раковиной и холодильником. Расстояние между этими точками должно быть близким, открытым и ничем не перегороженным, чтобы процесс приготовления пищи был комфортным и быстрым.
Плита должна располагаться рядом с рабочей поверхностью, на которой вы нарезаете ингредиенты. Холодильник следует разместить неподалёку, чтобы вы могли легко доставать продукты и сразу класть их на стол. Раковина также должна находиться в непосредственной близости от плиты, чтобы упростить процесс мытья посуды и продуктов.
Максимальное использование вертикального пространства
Часто люди недооценивают возможности вертикальных поверхностей, хотя именно они могут стать спасением в условиях ограниченного пространства. Профессионалы рекомендуют активно использовать стены, двери и даже потолки для хранения различных предметов.
Установите полки или крючки на стенах, чтобы хранить книги, посуду или декоративные элементы. На дверцах шкафов можно закрепить органайзеры для мелких вещей, таких как косметика или мелкие инструменты. А потолочные рельсы и другие подобные крепления в кладовых отлично подойдут для подвешивания велосипедов или сезонной одежды.
Как поддерживать чистоту в доме, не тратив много времени и сил

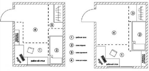
Обустройство детской зависит от площади комнаты, геометрических размеров, освещенности в течение дня, количества и возраста детей. Кроме этого необходимо продумывать меблировку на перспективу, ведь малыши быстро растут, а приобретать новые гарнитуры через пару лет будет накладно. Дизайнеры редакции Homius выделили 10 правил расстановки мебели в детской, которые помогут сделать комнату более комфортной и функциональной.

Расстановка мебели для двух деток в прямоугольной комнате
Планируем расстановку на бумаге
Предварительно необходимо всё спланировать на бумаге: начертить план помещения в масштабе с обозначением окон и дверей , а также радиаторов отопления . Затем нужно определить месторасположение основных секторов:
- письменного стола ;
- зоны отдыха;
- сектора хранения предметов гардероба;
- игровой и спортивной зоны .
В зависимости от возраста ребёнка определяют оптимальную площадь для каждого сектора. Например, дошкольникам основное пространство отводят под игровую зону, для письменного стола и шкафа нужно совсем мало места. Со временем понадобится полноценный рабочий стол с оргтехникой и вместительный шкаф для хранения одежды, игровая зона заменяется спортивным уголком .
Совет! Можно использовать специальные онлайн-программы для планирования размещения модульных групп. Второй вариант: нарисовать все предметы мебели в масштабе на бумаге, вырезать их и моделировать разные сценарии расстановки вручную.



Какие особенности организации пространства нужно учитывать при оформлении детской комнаты
Каждый дачник мечтает о богатых урожаях, не требующих лишних усилий. И понятие «ленивого» сада и огорода все прочнее входит в наш быт. Но сами принципы, позволяющие упростить процесс выращивания собственного урожая, для многих остаются если и не загадкой, то чем-то сродни научной фантастике. Огород без хлопот, не требующий прополок, поливов и даже перекопки – не миф или неисполнимая мечта, а реальность. Но чтобы добиться результата, придется не только кардинально изменить подход, но и пересмотреть представления о традиционных методах земледелия.

Огород без хлопот
В основе «ленивого сада», как часто называют построенный на законах органического (или природного) земледелия принцип организации собственного сада и огорода, лежит ответственный подход и уважение к природе. И заблуждаться, считая, что можно и вовсе ничего не делать, но получать великолепный результат, не стоит: успеха добиваются не ленивые, а разумно-ленивые садоводы. Умение грамотно распределять ресурсы, максимально сократить все трудоемкие работы и эффективно использовать всю площадь своего маленького участка – не только реальность, но и единственно правильный подход. И органическое земледелие – не только для тех, у кого нет времени или сил для «обычной» работы в саду. Это целая философия и особый подход к садоводству и огородничеству, доступный каждому независимо от возраста, знаний и опыта – тем, кто хочет жить и творить в симбиозе с природой, а не просто использовать и истощать ее ресурсы.
Ставя во главу задачу не получить от почвы максимум, а не навредить природе, в органическом земледелии используют естественные механизмы восстановления плодородия почв, внимательно анализируя законы их возобновления. И восприятие почвы не просто как ресурса, среды для выращивания растений, а как живого организма с уникальной экосистемой, любое вмешательство в которую приводит к безвозвратному нарушению равновесия, в корне меняет и восприятие самого процесса выращивания культурных растений.
Следуя законам самой природы, не вмешиваясь и не разрушая, а лишь помогая ей по мере возможностей и знаний, органическое земледелие учит нас:
- ценить свой труд;
- грамотно распределять ресурсы и время;
- не тратить время на ненужные (а часто и приносящие большой урон) процедуры;
- вновь наслаждаться временем, проведенном на своем участке.
Ведь тому, чтобы отдыхать на даче, а не трудиться каждую минуту, тоже надо учиться. И порой перестроить способ мышления и восприятие куда сложнее, чем освоить новые для себя методы.
Как создать уютную обстановку в доме, используя декоративные элементы
Цитату Антона Павловича Чехова : «Чисто не там, где убирают, а там, где не мусорят» можно применить и в нашем случае. Ваш дом будет чист, если и питомцы будут чистыми и ухоженными. Это базовое правило гигиены жилища, в котором есть представители животного мира.
Основательное очищение кошки или собаки раз месяц (не говоря уже о ежедневном мытье лап, даже если питомец не покидает границы жилища) заметно повысит уровень чистоты в вашей квартире. Но полностью избавиться от шерсти без помощи пылесоса не получится, поэтому настоятельно рекомендуем приобрести.
Этот чудо-гаджет вы можете удаленно отправлять в гигиенический тур по квартире с помощью мобильного приложения. Не волнуйтесь: животные быстро привыкают к роботу и некоторые даже используют его в качестве развлечения, катаясь на нем зигзагами. Но даже при наличии роботизированного пылесоса, все же, в выходные нужно пройтись и обычным ручным пылесобирающим аппаратом.
Также еженедельно нужно пылесосить спальное место животного и тщательно мыть его игрушки. Как только вы заведете такую практику, грязи от питомца станет намного меньше.
Важно!
Надеемся, ваш питомец спит не в вашей кровати? Даже если ваш четвероногий друг привит, чистоплотен и принимает ванну два раза в день, надо пресекать все его попытки облюбовать ваше ложе. И это в первую очередь важно для вашего здоровья! Здесь мы подробно объясняем, почему нужно избегать совместно сна с питомцами .
Какие подходы можно использовать для создания домашнего сада или огорода
Современного человека, живущего в больших городах и вблизи них, окружают нейтральные металлические оттенки. Вокруг много бетона, металла стекла, серых красок. Глаза от них быстро устают, поэтому важно при формировании домашнего пространства использовать больше цветов мягкой теплой палитры (красного, желтого, оранжевого и терракотового). Там, где они присутствуют, и взрослый, и ребенок, чувствует себя более комфортно.
Сегодня дизайнеры для создания уютного дома дизайн интерьера прорабатывают таким образом, чтобы в нем обязательно присутствовали натуральные отделочные материалы и мягкие природные оттенки. Корректировки вносятся даже в строго консервативные направления. Если еще совсем недавно при реализации концепции стиля минимализм применялась холодная комбинация черного и белого, в настоящее время предпочтение отдается сочетаниям коричневого и кофейного. Такая тенденция становится главной, приоритетной, поэтому не стоит бояться использовать теплую палитру. А если хочется яркости, пусть она будет в комнатах, в которых люди бывают редко.
Декор стен
Многие сегодня в погоне за модными трендами, стараются окружить себя простой и очень удобной обстановкой. Ничего лишнего – это не девиз, а концепция жизни современного человека. В погоне за лаконизмом часто идет отказ от использования в декоре аксессуаров, которые как раз и призваны создавать домашний уют.
Картины на стенах, фотографии в рамках близких людей, сувениры, привезенные из заграничных поездок – все это способно поднимать настроение, поэтому такие предметы обязательно нужно выставлять напоказ (вешать на стены, например). В зависимости от выбранного стиля оформления интерьера, на отвесной поверхности может появиться одно большое полотно или несколько маленьких рамочек, внутри которых есть семейные снимки, где запечатлены счастливые моменты.
Дачный интерьер – в каком стиле его лучше оформить и как распределить пространство
Живые растения
Дизайн уютного дома предполагает обязательное использование живых растений для оформления внутренних помещений. Они оказывают на человека успокаивающее действие, насыщают воздух кислородом, что положительно сказывается на здоровье в целом. Там, где в горшках цветут круглый год цветы, царит по-настоящему домашняя атмосфера. Правильно расставленные горшки и контейнеры помогают подчеркивать особенности выбранного стиля, создавать особую привлекательную красоту, оживлять обстановку вокруг.
Чтобы такой декор органично вписался в новую отделку, важно выбирать для маленьких комнат небольшие растения и расставлять их таким способом, чтобы все они не мешали, друг другу расти и развиваться. Существует огромное количество комнатных культур, одни из них красиво цветут, другие радуют своей сочной зеленью, третьи заставляют любоваться и изучать фактуру листьев.
Комнатные цветы можно расставлять не только на подоконниках. Их можно размещать на прикроватных тумбочках, ставить кадки в холле, возле диванов и кресел в гостиной. Растение способно стать неотъемлемой частью интерьера не только благодаря своей фактуре, иногда главным героем становится тара, в которой оно «живет». Красивый горшок – яркий элемент декора.
На кухне можно разбивать огород и сажать в него пряные травы. Есть сегодня и технологии, и возможности сделать это весьма эстетично и рационально. Каждый может почувствовать себя дизайнером и создать собственный японский сад в горшках. Если позволяет место, его можно разбить прямо в гостиной, поместить растения в плоские стеклянные горшки, заполнить их песком и цветными камешками, спрятать в наполнителе емкость, в которую посажен кактус. Получится и оригинально, и очень красиво.
Растения способны стать центральным арт-объектом в интерьере. В продаже уже давно есть готовые фитостены, при помощи которых несложно собирать стеллажи и украшать любые отвесные поверхности. Главный хит сезона горшки с цветами, подвешенные к потолку в перевернутом виде. Это не иллюзия обмана, а специально разработанные системы, которые позволяют так необычно украшать дома и делать их более уютными.
«Теплые» аксессуары
Что в первую очередь ассоциируется с теплом и уютом? Мягкие пушистые пледы, ворсистый персидский ковер, меховые чехлы на подушки. Если в доме появятся такие вещи, они правильно сработают. К ним приятно прикасаться, поглаживать их поверхность. Тактильные ощущения очень важны для человека, это тоже нужно учитывать.
Памятные вещи
У таких предметов есть своя энергетика. Любование ими вызывает определенные воспоминания. Их приход приносит умиротворение. Иногда совсем не обязательно скупать реликвии и дорогой антиквариат для украшения комнат. Ощущение домашнего комфорта иногда усиливается, если взгляд падает на старинный бабушкин телефон или сувенир, приобретенный по какому-то счастливому случаю.